S-623 Sürme Serisi
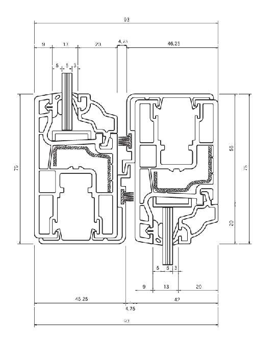
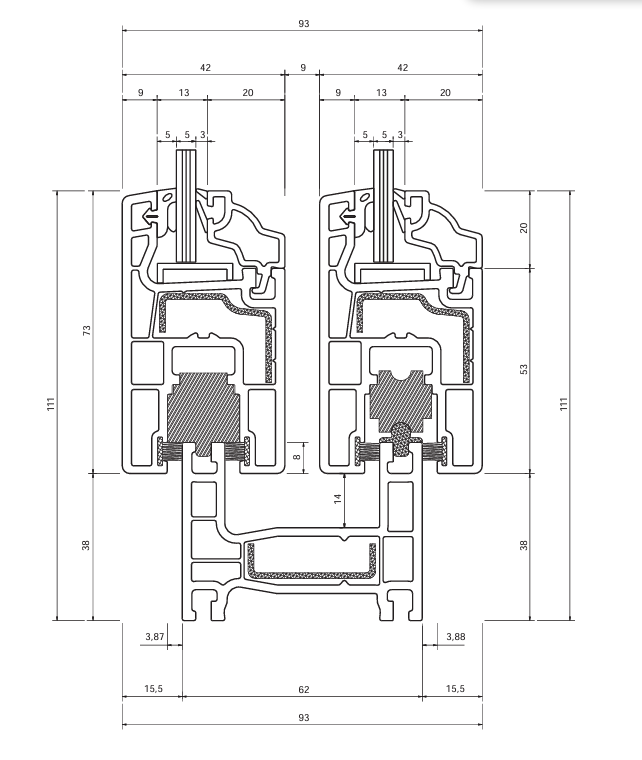
62 mm. 3 Odacıklı Profil
Alüminyum Sistem | 2026
Ürün Bilgileri
- • 3 odacıklı ve 62 mm. yapı derinliği ile mükemmel ses ve ısı yalıtımı, minimum yakıt maliyeti sağlamaktadır.
- • Kusursuz fonksiyonel yapısıyla pratik çözümler sunar.
- • 4 mm’den 20 mm’ye kadar cam aralığı uygulamalarına uygun profil yapısına sahiptir.
- • PVC ve alüminyum sineklik profil uygulamasına olanak sağlar.
- • Tek kanat sistemleri ile sabit kanatların cam toplam maksimum rüzgâr yüküne karşı dayanıklılığı artırılmıştır.
- • Profilin geniş odacık yapısı ve galvaniz destek sac kullanımıyla birlikte dış etkilere karşı yüksek dayanım sağlar.
- • Maksimum sızdırmazlık ve estetik görüntü, köşeleri ovalleştirilmiş ve birbirine uyumlu profil sistemi.
- • Kilit derinliği çift taraflı kavrama ile emniyet optimum düzeydedir.
- • Profillerin kalitesi ve kullanılan ham madde sayesinde yüksek elastikiyet sağlar.
- • Su tahliye ve havalandırma kanalları kasa ve kanatta yüzey eğimi ile birlikte uygulanmaktadır.
- • 2’li eğim yüzeyi ile mükemmel kontrollü su tahliyesi için kolay temizlenebilir ilave su hazneli oval iç eğim yüzeyi.
Teknik Özellikler
| Profil Kalınlığı | 2 mm |
| Malzeme | 6063 T6 Alüminyum |
| Yüzey İşlemi | Elektrostatik Boya |
| Contalar | EPDM Fitil |
| Yük Taşıma Kapasitesi | 150 kg/m² |
Sistem Bileşenleri
- Ana Taşıyıcı Profiller
- Paslanmaz Menteşeler
- Hidrolik Amortisörler
- Kilit Mekanizması